Stylisch renovierte 3,5 Zimmer Wohnung

1950.00 CHF im Monat Miete

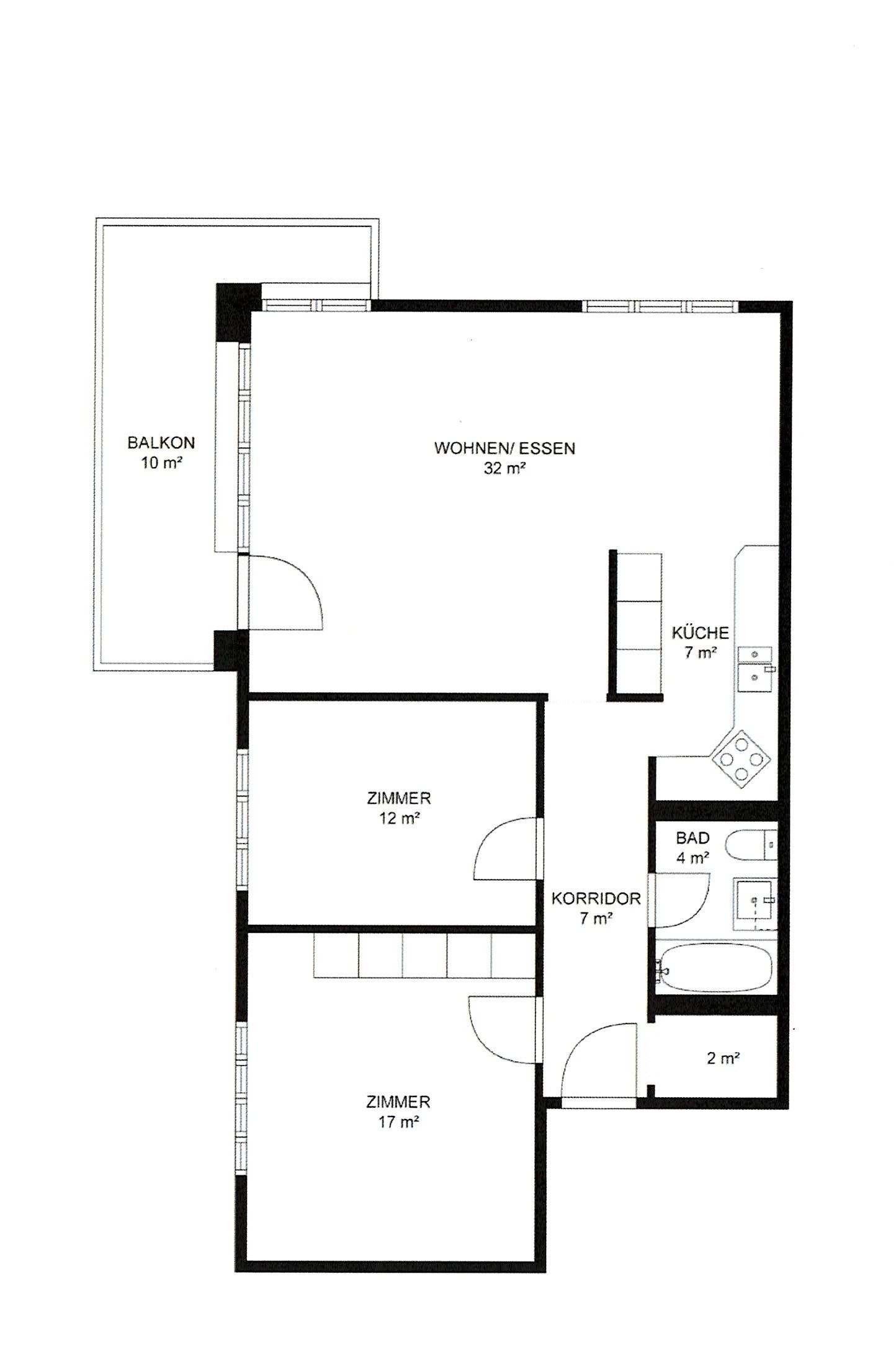
Stylisch renovierte 3,5 Zimmer Wohnung mit eleganter Küche welche mit Marmor, Neuer Spülmaschine, Neuem Kühlschrank, Induktion-Herd, Mikrowelle und Ofen ausgestattet ist, 1 Bad mit grosser Bodenebener Dusche & WC & Lavabo, 1 Stylisches Gäste WC, 2 Schlafzimmer, 1 heimeliges Wohnzimmer mit direktem Zugang zum grossen Balkon, welcher mit den selben Steinplatten wie die Wohnung  ausgestattet ist.


Lage ist Trumpf:

In einer Sackgasse gelegener Verkehrsruhigen Seiten-Strasse, nicht weit von Schule, Bank, Post, Migros und ÖV

80 m2

1 & 1

2

200m2

Interested in this property?

Rufen Sie uns an oder schreiben Sie eine Mail:


Tel: 076/408-25-25 / E-Mail: info@eigenheim24.ch